P 2
Leipzig - 3 Houses
Project
back to
<<< Real-Life
Icon
     

At present we own 3 houses in Leipzig, Germany. They are all about 100 years old and landmarked. Our plan is to modernize them step by step and to convert them into seminar houses and hotels. Each room will have it's own bathroom and kitchenette, and some suites will have two rooms or more plus their own kitchen. There will also be a kitchen and a restaurant for everyone to share. An elevator will also be available for all seven floors. We could even get a 5 star certification in the end! The houses are just 4 streetcar stations away from the central railway station, taking just 3 minutes, or 12 minutes on foot. The university and high school are next to the railway station in the center of Leipzig.

You are invited to join us living there, helping to construct, do services, earn money, join our projects etc.

 

>>> Room Offerings >>>

 

>>> Contact us >>>

 

House 1 - Elisabethstr. 23, 04315 Leipzig, Germany

           

Our new construction plans for House 1

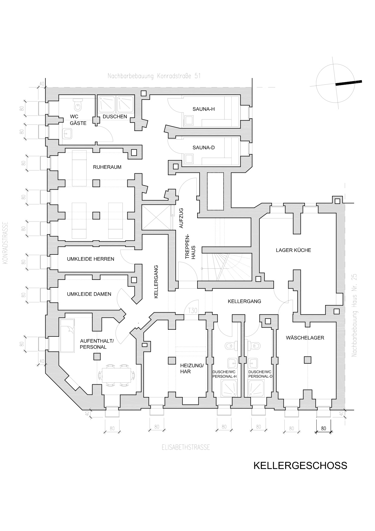
Cellar
h1_0
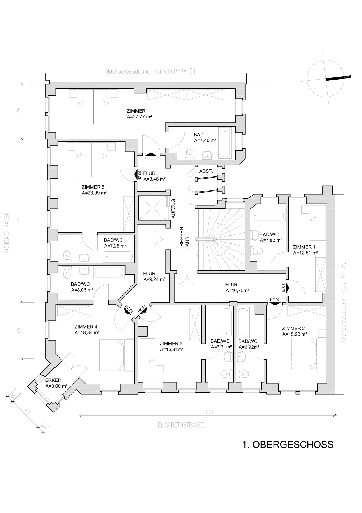
1._&_2._Floor
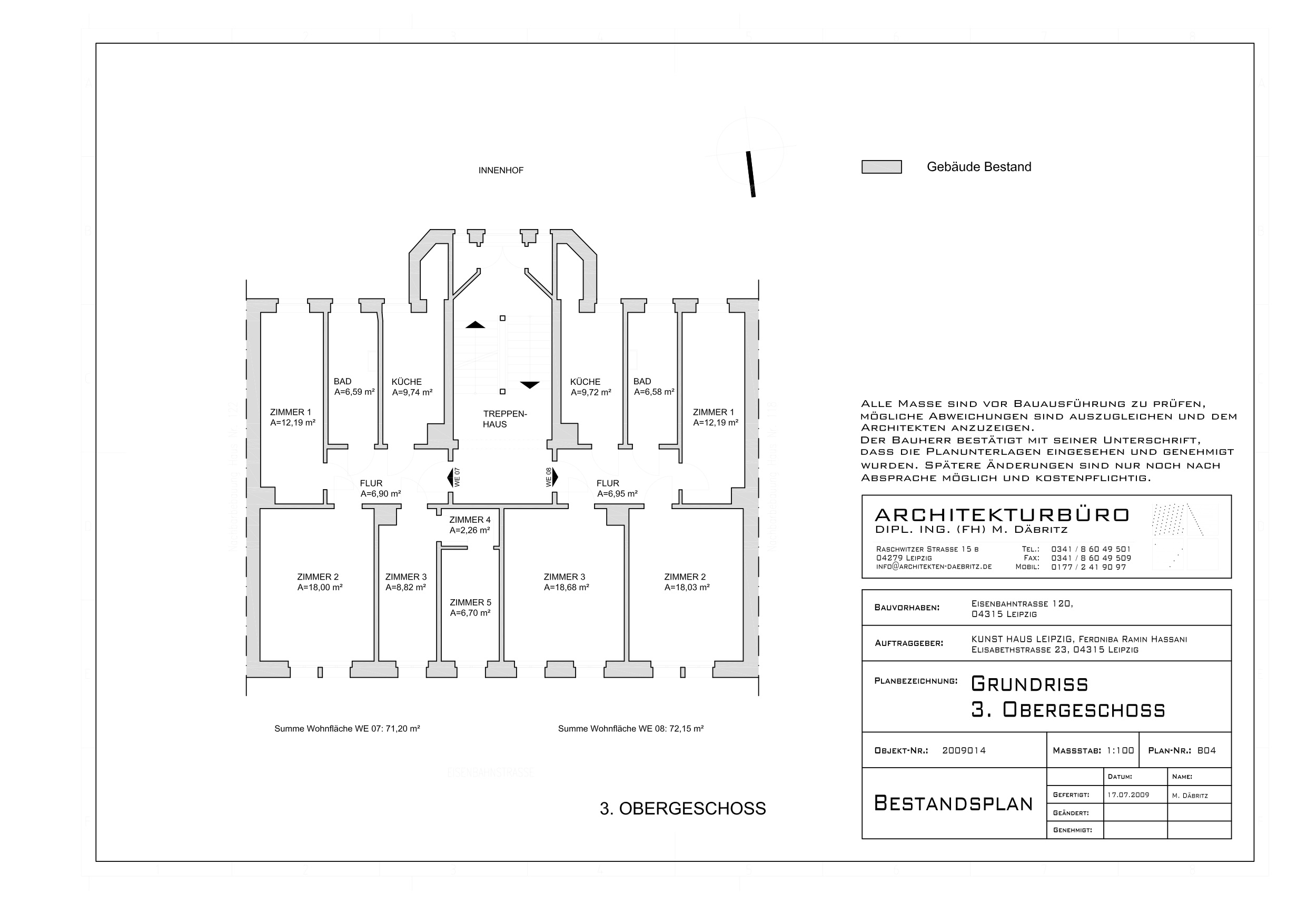
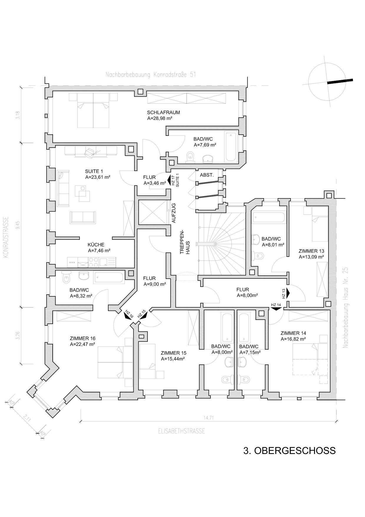
3. Floor
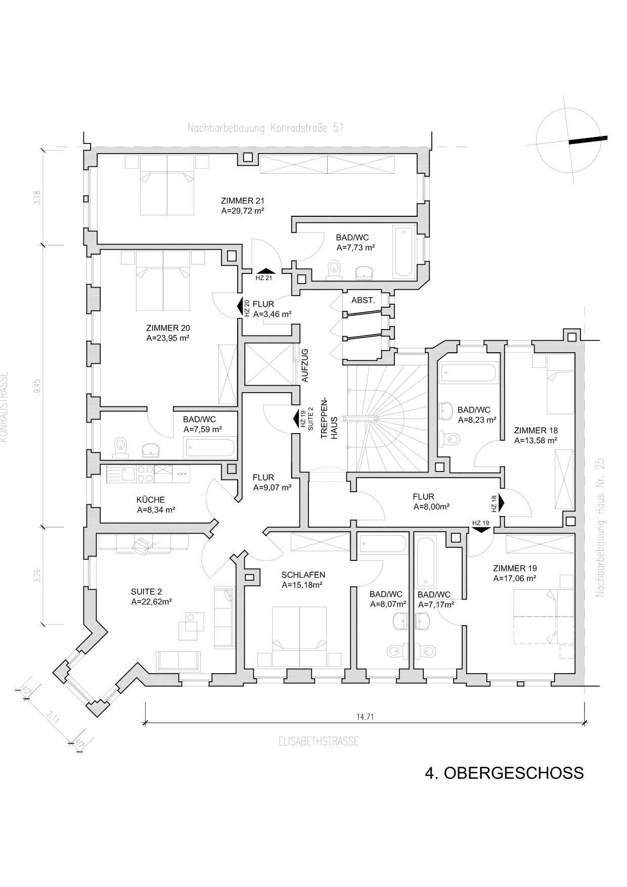
4. Floor
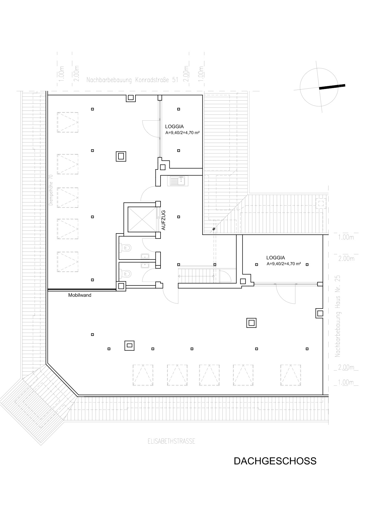
Attic Floor
Cellar
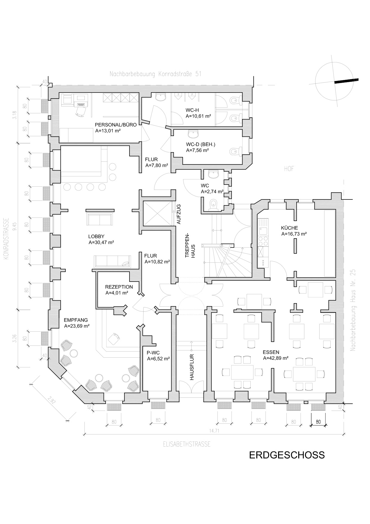
Ground Floor
Floor 1 & 2
Floor 3
Floor 4
Attic Floor

 

House 2 - Eisenbahnstr. 100, 04315 Leipzig, Germany - Sold - Will be exchanged soon

         

Current plans for the new House 2 are coming soon ...

Our new construction plans for House 2 are coming soon ... :-)

 

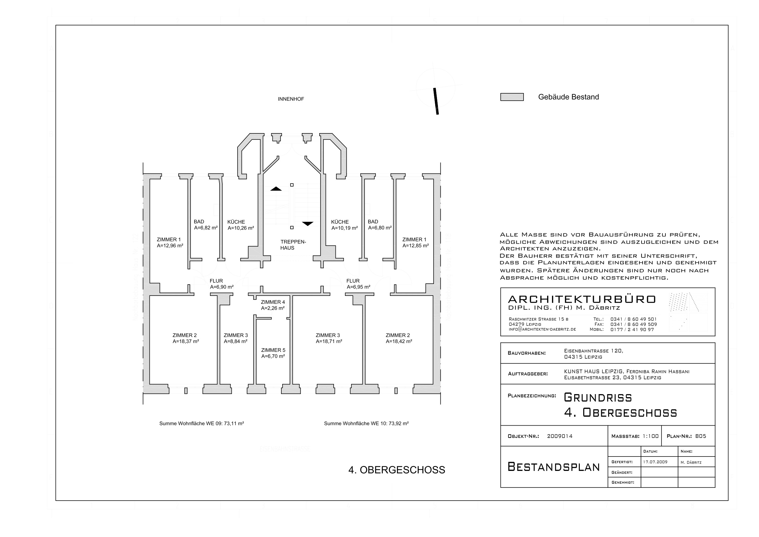
House 3 - Eisenbahnstr. 120, 04315 Leipzig, Germany

         

Current plans for House 3

Ground Floor
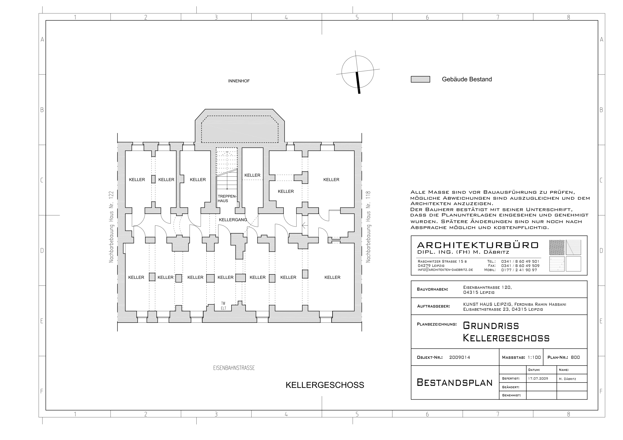
Cellar
Ground Floor
Floor 1
Floor 2
Floor 3
2. Site Plan
 
Floor 4
Attic Floor
Site Plan 1
Site Plan 2
 

 

Our new construction plans for House 3 are coming soon ... :-)

 

>>> Room Offerings >>>

 

>>> Contact us >>>

 

Like and Follow us on Facebook

 

Follow lovetheuniverse on Twitter 

Property Alliance
Leipzig - 3 Houses
Iguana Breeding Farm
CDs on iTunes and Amazon
Internet Marketing - Course
Website Construction
Music Production
Online Shop
Game Development - LtU
Life & Spirit Coaching
Holy Scriptures - Seminars
Meditation - Course
Charity
Vancouver - Center
Supreme Welfare Group

>>> Room Offerings >>>

>>> Contact us >>>

 

 

 

 

 

 

 

 

 

 

 

 

 

 

 

 

 

>>> Room Offerings >>>

>>> Contact us >>>

 

 

 

 

 

 

 

 

 

 

 

 

 

 

 

>>> Room Offerings >>>

>>> Contact us >>>